Szentlőrinckátán 3 szobás, 86 m2-es tégla ház közel a központhoz eladó!
Találja meg
álmai ingatlanát!
Ingatlan
kereső
| Alapterület: | 86 m² |
| Szobák: | 3 |
| Telek: | 4187 m² |
36.900.000 Ft
Tulajdonságok
| Szerkezet | Állapot | Építés éve | Fűtés |
|---|---|---|---|
| Tégla | Felújítandó | 1965 | gázkazán |
| Villany | Víz | Gáz | Csatorna |
|---|---|---|---|
| van | van | van | van |
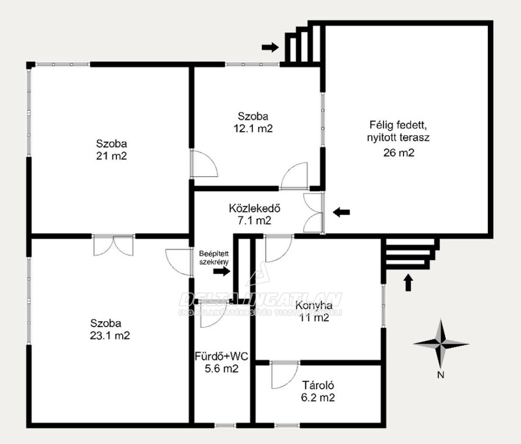
| Helyiség | Méret(m²) | Padló |
|---|
| Szoba | 23.1 | Parketta |
| Szoba | 21 | Parketta |
| Szoba | 12.1 | Parketta |
| Konyha | 11 | Járólap |
| Közlakedő | 7.1 | Járólap |
| Fürdő+WC | 5.6 | Járólap |
| Tároló | 6.2 | Járólap |
Leírás
Csak a Delta Ingatlan kínálatában!
2 gyermekes falusi CSOK-ra és CSOK+ hitelre alkalmas ingatlan!
Szentlőrinckátán 3 szobás, 86 m2-es TÉGLA családi ház, közel a központhoz eladó!
Jellemzők:
- a tégla falazattal épült, keleti fekvésű ingatlanban 3 szoba, konyha, fürdő+WC, közlekedő és tároló kapott helyet
- fűtésről gázkazán gondoskodik, amelyhez 8 db. radiátor csatlakozik
- vegyes tüzelésű kazán is rendelkezésre áll, de az utóbbi években használaton kívül volt
- a 21 m2-es utcai szobában fűtő-hűtő légkondicionáló került felszerelésre
- meleg vizet villanybojler szolgáltat kedvezményes tarifával,
- a tető sátortető, cserép fedéssel
- a csapadékvíz elvezetésére az épületen körbe futó új ereszcsatorna szolgál
- az elkülönülten található melléképületben az alábbi helyiségeket találjuk: garázs 18 m2, műhely 10 m2, tároló 3 m2 és baromfi ól
- a főépület 30 m2-en alápincézett, egy 17 m2-es, (a fűtőkészülékek itt találhatók), valamint egy 6 és 7 m2-es helyiség ami egy ideiglenes fal bontásával szintén garázzsá alakítható
- a szomszéd ingatlan tulajdonosa, aki ennek az értékesítésre szánt ingatlannak is 1/2 arányú résztulajdonosa a kertben fóliás kertészeti tevékenységet folytat
- tevékenységének fenntartása végett a kert fólia sátrakkal telepített részét leválasztja
- a földhivatali nyilvántartás szerint a jelenlegi telek méret 4187 m2, leválasztás után a lakóházhoz tartozó terület 1000 m2 körül lesz, ami a településen átlagosnak mondható
- a szétméretési folyamat már el lett indítva, a földhivatali bejegyzésig több hónapot vesz igénybe
- az elkerítési munkákat az eladó feladata lesz elvégezni
- a kert fent említett megmaradó része rendezett, füvesített, fenyőfákat és pici rózsakertet találunk benne
- a pihenésre szolgáló nagy méretű teraszra felfutó szőlő lugas nyáron árnyékot, ősszel ízletes gyümölcsöt ad gazdájának
- öntözés vezetékes vizet használó csapról történik, melynek csatlakozója, valamint a fúrt kút is fagymentes helyen, a pincében található
- 2023 nyarán a lakóépület alapja 3 oldalról ( a terasz felőli nem) injektálásos technológiával megerősítésre került
- a ház jelenleg nem lakott, rövid határidővel birtokba vehető, bútorzat nélkül kerül átadásra
- a bejárati ajtó műanyagra lett cserélve, ablakok védelméről redőnyök gondoskodnak
- vezetékes vízellátás, szennyvíz elvezetés, elektromos áram ( 380 V, 3×25 A ), gázellátás megoldott
Az eladásra kínált tehermentes ingatlan a település talán legszebb pontján, nyugodt környezetben helyezkedik el, jó szomszédsággal.
Az épület ablakai egy kicsi, de annál szebb parkra néznek, melynek szobrait erdélyi fafaragó művészek készítették.
A buszmegállót karnyújtásnyira találjuk, de rövid sétával a polgármesteri hivatal és a község központja is elérhető, ahol üzletek, pékség, háziorvosi és fogorvosi rendelő, posta, ATM várja a vásárolni ill. ügyeiket intézni szándékozókat.
A településen található üzemek, ill. a két közeli város Jászberény és Jászfényszaru is változatos munkalehetőségeket kínálnak az itt élők, és az itt letelepedni kívánók számára.
Szentlőrinckáta csaknem 2000 lakosú Pest Vármegyei település, Nagykáta járási központtal, a fővárostól 60 km-re.
Budapest közúton a 31-es sz. főútvonalon, ill az M3-asautó pályán érhető el felhajtási lehetőséggel Hatvan városánál, de a Jászberény- Bp. Stadionok távolsági buszjárattal is utazhat a két város irányába.
Nem rendelkezik a kiszemelt ingatlan teljes vételárával? Teljes körű bank semleges hitel és CSOK ügyintézésben irodánk segítségére lesz Önnek.
A hirdetésben szereplő adatok az Eladó(k)-tól származnak, azok tartalmáért felelősséget nem vállalunk!
ELADNÁ INGATLANÁT?
HIRDESSE NÁLUNK KEDVEZŐ FELTÉTELEKKEL!
- Alacsony sikerdíj
- Nagy vevőkör
- Teljes körű ügyintézés
- 10 év tapasztalat
Keressen elérhetőségeimen!
Köszönöm.
Eladná Ingatlanát?
Hirdesse nálunk
kedvező feltételekkel!
Alacsony sikerdíj
Nincs kizárólagosság
Nagy vevőkör
10 év tapasztalat




















